ГлавнаяПроекты готовых решенийМодульные здания → Общ. на 168-252 чел. повышенного комфорта с индивид. санузлом

Общ. на 168-252 чел. повышенного комфорта с индивид. санузлом

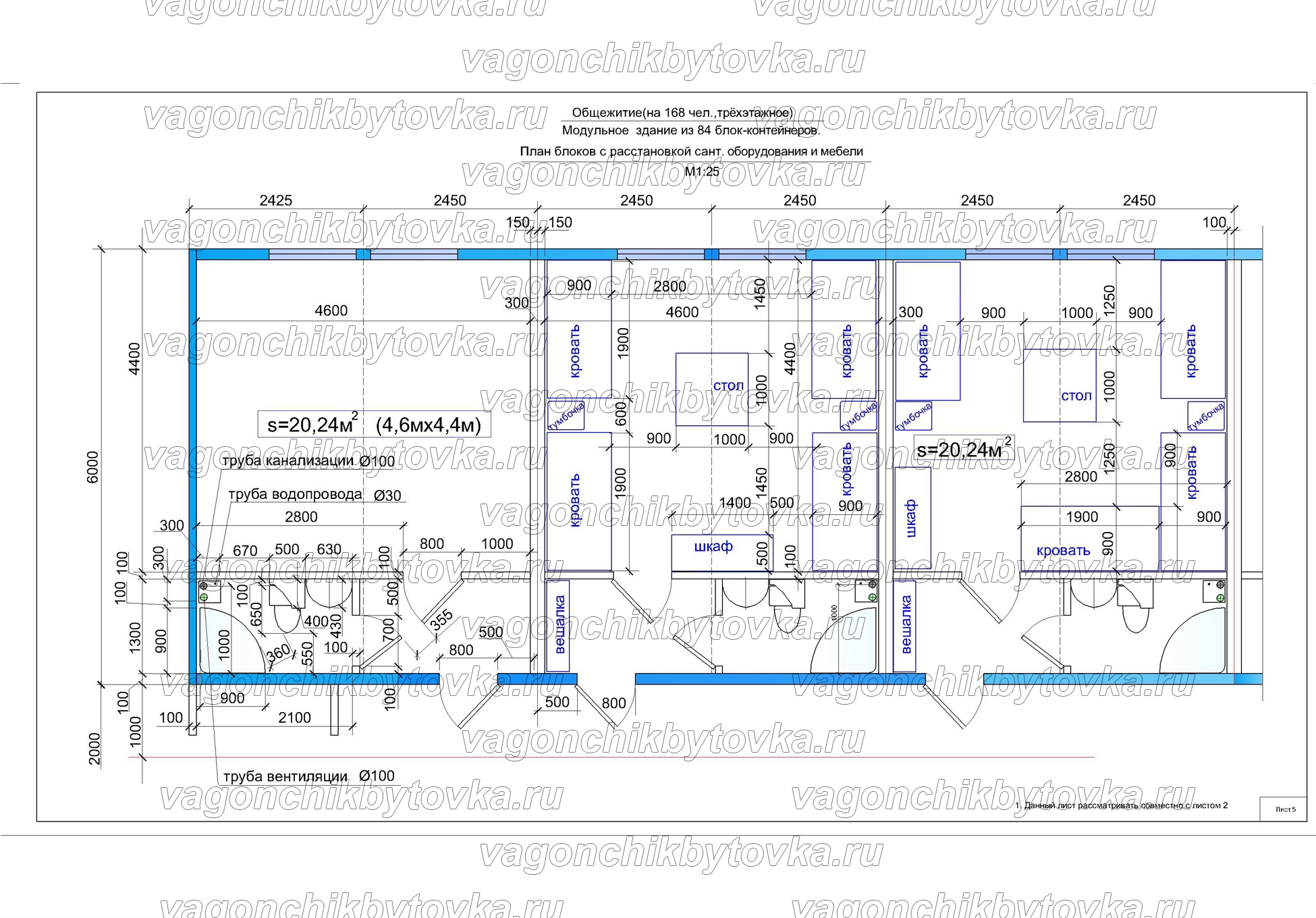
Общежитие на 168-252 чел. повышенного комфорта с индивид. санузлом


Общ. на 168-252 чел. повышенного комфорта с индивид. санузлом Общ. на 168-252 чел. повышенного комфорта с индивид. санузлом Общ. на 168-252 чел. повышенного комфорта с индивид. санузлом Общ. на 168-252 чел. повышенного комфорта с индивид. санузлом Общ. на 168-252 чел. повышенного комфорта с индивид. санузлом Общ. на 168-252 чел. повышенного комфорта с индивид. санузлом Общ. на 168-252 чел. повышенного комфорта с индивид. санузлом
Назад

Добро пожаловать к нам!

Запишитесь в гости и мы устроим для Вас
теплый прием с чашечкой кофе)

Записаться